Современное здание, выполненное с учетом всех новейших технологий в сфере строительства. Индивидуальная архитектура, витражное остекление фасада, панорамный вид из окон. Территория находится под круглосуточной охраной с системой контроля пропуска. Весь комплекс соответствует европейским стандартам класса «В+»
Место
Пересечение улиц Кирова и Мингажева
Инфраструктура
Парковка, охрана, в здании кафе и медицинский центр
Цена
Аренда от собственника, никаких дополнительных платежей
Общая площадь 41 кв.м. - основная площадь 42,2 кв.м. (№8) - основная площадь 37,4 кв.м. (№4)
Тариф - основная площадь 500 руб. за кв.м.
Сумма аренды - основная площадь 20 500 руб.
Сумма коммунальных платежей - общая площадь 7 380 руб.
Общая стоимость - общая площадь 27 880 руб.
4 кабинета 5 этаж 128 кв.м. (№23,№24,№25,№26)
за кв.м. от 750
руб.
Общая площадь 128 кв.м. - основная площадь 47,8 кв.м. (№25) - основная площадь 37,4 кв.м. (№23) - основная площадь 36,4 кв.м. (№24) - основная площадь 8,2 кв.м. (№26)
Тариф - основная площадь 500 руб. за кв.м.
Сумма аренды - основная площадь 64 000 руб.
Сумма коммунальных платежей - общая площадь 23 040 руб.
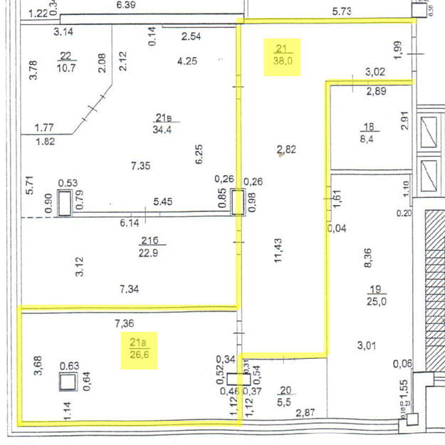
Общая площадь 176,5 кв.м. - основная площадь 58,2 кв.м. (№21) - основная площадь 48,7 кв.м. (№22) - основная площадь 25,4 кв.м. (№18) - основная площадь 23,4 кв.м. (№20) - основная площадь 20,8 кв.м. (№19)
Тариф - основная площадь 500 руб. за кв.м.
Сумма аренды - основная площадь 88 250 руб.
Сумма коммунальных платежей - общая площадь 31 770руб.
Общая стоимость - общая площадь 120 020руб.
Кабинет+ кухня 14 этаж 33,7+4,2 кв.м. (№27, №31)
за кв.м. от 750
руб.
Общая площадь 45 кв.м. - основная площадь 33,7 кв.м. (№27) - основная площадь 4,2 кв.м. (№31) - вспомогательная площадь 7,1 кв.м. (№1)
Тариф - основная площадь 500 руб. за кв.м. - вспомогательная площадь 500 руб 300 руб. за кв.м.
Сумма аренды - основная площадь 18 950 руб. - вспомогательная площадь 2 130 руб.
Сумма коммунальных платежей - общая площадь 8 100 руб.
Общая стоимость - общая площадь 29 180 руб.
Кабинет 13 этаж 17,9 кв.м. (№35)
за кв.м. от 750
руб.
Общая площадь 24,1 кв.м. - основная площадь 17,9 кв.м. (№35) - вспомогательная площадь 6,2 кв.м. (№29)
Тариф - основная площадь 500 руб. за кв.м. - вспомогательная площадь 500 руб 200 руб. за кв.м.
Сумма аренды - основная площадь 8 950 руб. - вспомогательная площадь 1 240 руб.
Сумма коммунальных платежей - общая площадь 4 338 руб.
Общая стоимость - общая площадь 14 528 руб.
Два кабинета 13 этаж 31,5+12,9 кв.м. (№1, №19)
за кв.м. от 750
руб.
Общая площадь 49,1 кв.м. - основная площадь 31,5 кв.м. (№1) - основная площадь 12,9 кв.м. (№19) - вспомогательная площадь 4,7 кв.м. (№20)
Тариф - основная площадь 500 руб. за кв.м. - вспомогательная площадь 500 руб 300 руб. за кв.м.
Сумма аренды - основная площадь 22 200 руб. - вспомогательная площадь 1 410 руб.
Сумма коммунальных платежей - общая площадь 8 838 руб.
Общая стоимость - общая площадь 32 448 руб.
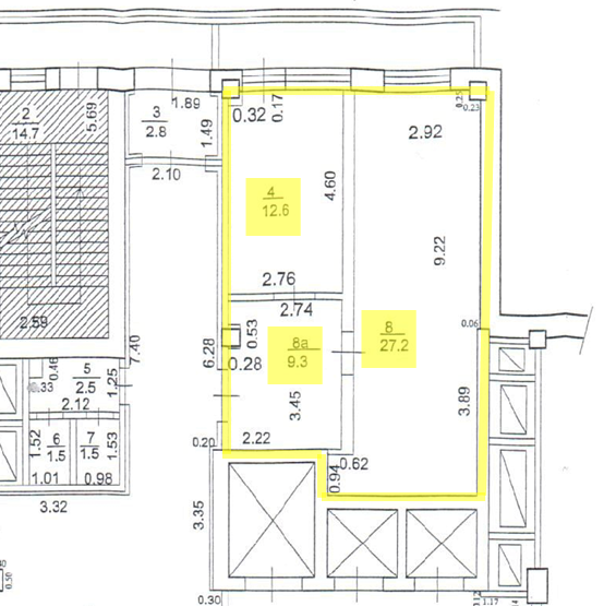
Два кабинета 12 этаж 27,2+12,6 кв.м. (№8, №4)
за кв.м. от 750
руб.
Общая площадь 40 кв.м. - основная площадь 27,2 кв.м. (№8) - основная площадь 12,6 кв.м. (№4) - вспомогательная площадь 9,3 кв.м. (№8а)
Тариф - основная площадь 500 руб. за кв.м. - вспомогательная площадь 500 руб 300 руб. за кв.м.
Сумма аренды - основная площадь 20 000 руб. - вспомогательная площадь 2 790 руб.
Сумма коммунальных платежей - общая площадь 8 874 руб.
Общая стоимость - общая площадь 31 664 руб.
Два кабинета 12 этаж 34,4+10,7 кв.м. (№21в, №22)
за кв.м. от 750
руб.
Общая площадь 57,9 кв.м. - основная площадь 34,4 кв.м. (№21в) - основная площадь 10,7 кв.м. (№22) - вспомогательная площадь 12,8 кв.м. (№21)
Тариф - основная площадь 500 руб. за кв.м. - вспомогательная площадь 500 руб 300 руб. за кв.м.
Сумма аренды - основная площадь 22 550 руб. - вспомогательная площадь 3 840 руб.
Сумма коммунальных платежей - общая площадь 10 422 руб.
Общая стоимость - общая площадь 36 832 руб.
Два кабинета 12 этаж 31,6+22,2 (№16, №17)
за кв.м. от 750
руб.
Общая площадь 60,4 кв.м. - основная площадь 31,6 кв.м. (№16) - основная площадь 22,2 кв.м. (№17) - вспомогательная площадь 6,6 кв.м. (№15)
Тариф - основная площадь 500 руб. за кв.м. - вспомогательная площадь 500 руб 300 руб. за кв.м.
Сумма аренды - основная площадь 26 900 руб. - вспомогательная площадь 1 980 руб.
Сумма коммунальных платежей - общая площадь 10 872 руб.
Общая стоимость - общая площадь 39 752 руб.
Кабинет 12 этаж 31,6 + 3,9 кв.м (№16)
за кв.м. от 750
руб.
Общая площадь 35,5 кв.м. - основная площадь 31,6 кв.м. (№16) - вспомогательная площадь 3,9 кв.м. (№15)
Тариф - основная площадь 500 руб. за кв.м. - вспомогательная площадь 500 руб 300 руб. за кв.м.
Сумма аренды - основная площадь 15 800 руб. - вспомогательная площадь 1 170 руб.
Сумма коммунальных платежей - общая площадь 6390 руб.
Общая стоимость - общая площадь 23 360 руб.
Кабинет 12 этаж 26,6 кв.м. (№21а)
за кв.м. от 750
руб.
Общая площадь 34,2 кв.м. - основная площадь 26,6 кв.м. (№21а) - вспомогательная площадь 7,6 кв.м. (№21)
Тариф - основная площадь 500 руб. за кв.м. - вспомогательная площадь 500 руб 300 руб. за кв.м.
Сумма аренды - основная площадь 13 300 руб. - вспомогательная площадь 2 280 руб.
Сумма коммунальных платежей - общая площадь 6 156 руб.
Общая стоимость - общая площадь 15 580 руб.
Обращаем ваше внимание, что информация, размещенная на сайте, носит информационный характер и не является публичной офертой согласно статье 437 ГК РФ. ООО «УралЛЦ» оставляет за собой право в одностороннем порядке в любое время без уведомления вносить изменения, удалять, исправлять, дополнять, либо иным способом обновлять информацию о тарифах арендной ставки. Размер арендной ставки устанавливается индивидуально. ООО «УралЛЦ» вправе в любое время в одностороннем порядке отказаться от указанного размера арендной ставки или без предварительного уведомления его изменить.